Sophisticated Family Living with a Striking Architectural Edge
1C Coane Street, Ormond
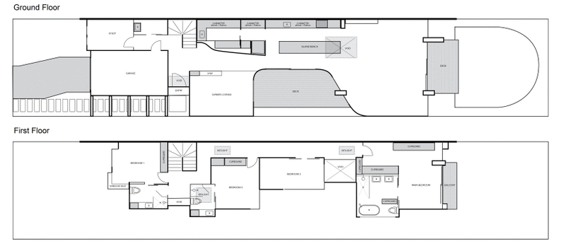
Positioned in a boutique development of two luxury townhouses and in one of Ormond’s most tightly held pockets on Coane Street, this near-new, architecturally designed four-bedroom townhouse with a dedicated study delivers an exceptional standard of modern living, defined by space, privacy, and premium design.
Set within easy reach of EE Gunn Reserve, and just a short stroll to Ormond Railway Station, the home offers effortless connectivity to the CBD while enjoying the tranquillity of a leafy residential setting. Schooling options, including Kilvington Grammar School and zoning for Caulfield South Primary School, further enhance the appeal for families seeking both lifestyle and long-term convenience.
Architecturally striking and intelligently designed, the residence showcases an edge-to-edge layout with no direct boundary outlooks, creating the rare feel of a standalone home. Premium finishes are evident throughout, including natural stone surfaces, recycled brick detailing, solid surface basins and bathware, and continuous timber flooring across both levels.
At the heart of the home, a large, designer kitchen features an impressive approx. four-metre island bench, complemented by stainless steel appliances, and seamlessly adjoins a butler’s pantry and full laundry which delivers both functionality and refined style. Enhancing the home’s indoor-outdoor appeal, a central courtyard with a beautifully decked area flows directly from the kitchen and meals zone, creating a stunning setting for everyday living and effortless entertaining. The expansive, open-plan living and dining area further connects to a lush, private backyard, with all garden maintenance included in the rent, ensuring easy, low-maintenance living.
The expansive floorplan has been thoughtfully curated to include a dedicated study, ideal for remote work or quiet retreat, alongside a signature sunken lounge which is a bold architectural feature that elevates the home beyond the ordinary.
Accommodation comprises four generously proportioned bedrooms. The master suite is a true sanctuary, complete with vaulted ceilings, a sun-drenched north-facing balcony, and a luxurious private ensuite featuring dual vanities and a freestanding bath. The remaining three bedrooms are serviced by two beautifully appointed central bathrooms, ensuring flexibility and functionality for family living.
Additional highlights include a convenient downstairs powder room, bespoke lighting throughout, a fully integrated irrigation system, secure entry, and ample storage solutions.
Combining design excellence with a blue-chip location, this is a rare leasing opportunity offering a lifestyle that is both connected and quietly exclusive, moments from Ormond’s cafés, parklands, and transport.
























