A Generational Offering in Old Lonsdale
6 Egerton Street, Point Lonsdale
Positioned on one of the highest points in Old Point Lonsdale, this solidly built 1960s residence combines timeless elegance with an elevated coastal outlook, capturing a glimpse of the ocean and delivering an inviting seaside lifestyle within easy walking distance of ocean and bay beaches, the highly regarded Point Lonsdale Golf Club, and the vibrant main street.
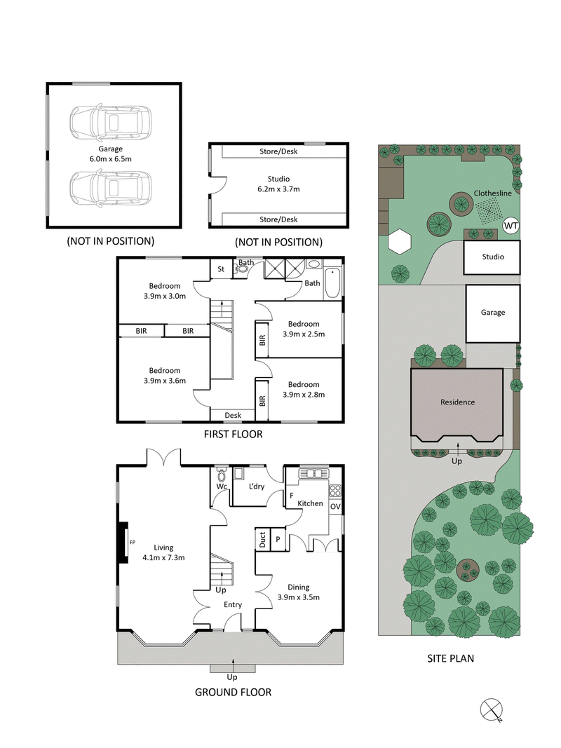
Cherished and meticulously maintained by the same family for almost 60 years, this unique Leo McDonald-built residence sits proudly across an extensive 1,022sqm (approx.) of beautifully kept gardens, offering a rare sense of light, warmth and exclusivity.
Classic by design, a wide entry foyer invites you into a thoughtful double-storey floorplan, where a bay-windowed living room is bathed in northern light by day and warmed by the glow of a wood-burning fire by evening.
Offering sympathetic updates where it counts, yet with scope for future enhancements, the all-electric kitchen caters to the discerning entertainer, connecting with the elegant formal dining room for a natural flow between preparation and presentation.
Upstairs, four robed bedrooms branch off a spacious landing with a handy study nook, including the light-filled main bedroom with a northern outlook over the picture-perfect gardens. The family bathroom is complemented by an adjoining shower room, while a powder room services the lower level.
Providing added accommodation flexibility, a storage-laden rear studio delivers a private haven for teenagers or guests, a sun-lit creative hub, or an uninterrupted work-from-home space.
Completing the picture, the home is well appointed with ducted heating, a powered double lock-up garage, and expansive garden surrounds featuring productive fruit trees and established native grass trees.
With its timeless originality on full display, this enchanting property reflects a future full of possibility – whether that’s weaving new memories into its existing character or simply enjoying its charm as you shape the next chapter in one of Old Lonsdale’s most tightly held and elevated pockets.



















