Beautifully Established And Brilliantly Flexible
5 Bronzewing Street, Ocean Grove
Modern family living should feel exactly like this. Light-filled, beautifully established and ready to enjoy from day one, this immaculately presented four bedroom residence delivers the ease of a move-in ready home with the flexibility, comfort and future potential to make life in Ocean Grove feel wonderfully settled from the outset.
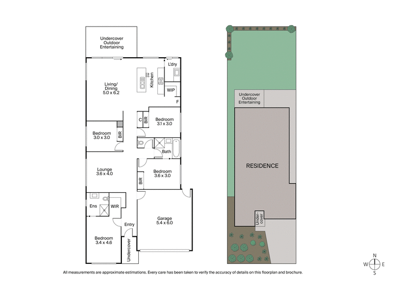
Behind its landscaped frontage, the home opens to a calming neutral palette, high ceilings and engineered timber floors that bring warmth and continuity to the main living spaces. At the rear, the open plan kitchen, meals and living domain is bathed in natural light, with a desirable orientation drawing sunshine deep into the interior and large sliding doors extending the room to the undercover alfresco. It is a setting made for long lunches, easy summer barbecues, children moving between indoors and out and evenings with friends that linger well past sunset.
The galley kitchen is streamlined and highly functional, appointed with stone benchtops, pendant lighting, a 900mm Westinghouse oven with gas cooktop, dishwasher and a spacious walk-in pantry that keeps the everyday beautifully organised. A second lounge adds another layer of liveability, equally suited to a playroom, media room, oversized home office or quiet retreat when the household needs space to spread out.
Privately positioned, the main bedroom enjoys leafy outlooks across the landscaped front gardens and is complemented by a walk-in robe and stylish ensuite. Three further bedrooms with built-in robes sit within their own zone near the bright main bathroom and separate WC, creating a floorplan that balances family practicality with genuine comfort.
Outside, the north oriented rear yard remains a blank canvas with room to shape something further over time, whether that means layered planting, a productive kitchen garden or a future swimming pool (STCA). Ducted heating, a double lock up garage and low maintenance surrounds complete a home that feels polished, practical and easy to own.
With parklands, schools, shopping, beaches and public transport all close by, this is a central Ocean Grove address designed to be lived in, loved and enjoyed.











