EASY LOW MAINTENANCE LIVING
1/5 Elm Street, Preston
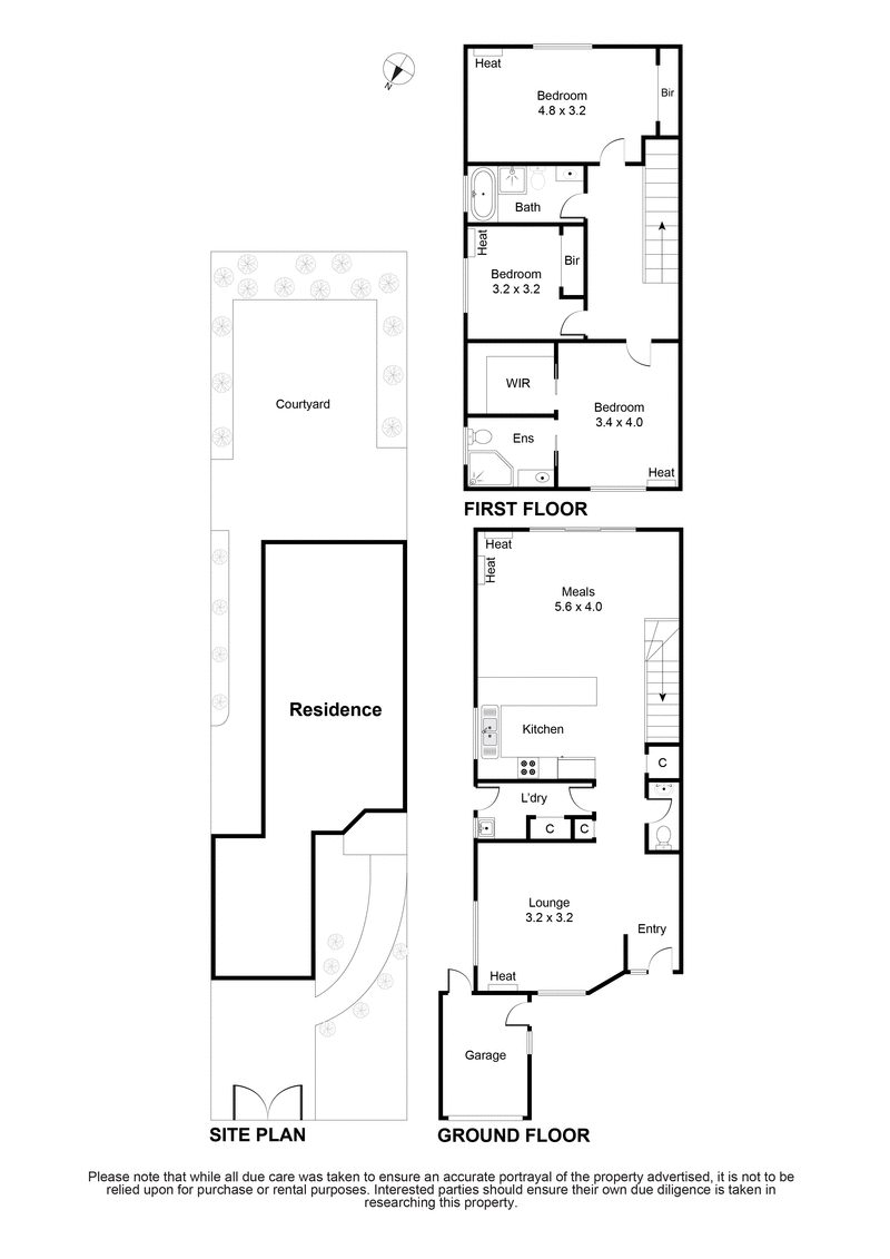
Enjoy effortless living without the burden of ongoing maintenance, perfectly positioned within easy walking distance to Northland Shopping Centre, local schools, and public transport. This well-appointed three-bedroom, double-storey townhouse sitting on approx. 280sqm of land offers a lifestyle of comfort, convenience, and low-maintenance appeal.
Thoughtfully designed to blend indoor and outdoor living, the home features a light-filled and spacious open-plan living, dining, and kitchen zone on the ground floor—ideal for both everyday living and entertaining. Sliding doors seamlessly connect to a generous rear yard, creating the perfect setting for weekend BBQs or relaxed gatherings with family and friends.
Upstairs, the home is cleverly zoned with three well-proportioned bedrooms, each complete with built-in robes and plush carpeting, alongside two fully renovated bathrooms for added convenience and privacy.
Additional highlights include, hydronic heating, master bedroom with WIR & ensuite, evaporative cooling, a guest powder room, and excellent storage throughout, including under-stair space. A secure single lock up garage behind an electric gate.
Whether you're a first home buyer, young professional, or downsizer seeking a stylish, easy-care lifestyle, this inviting residence is ready to move in and enjoy.



















