Palm Springs Style in Old Grove
112A Powell Street, Ocean Grove
Channelling a distinct Californian ambience in one of Ocean Grove’s most tightly held inner-village pockets, this beautifully designed residence delivers the feeling of a private coastal resort while catering effortlessly to modern family life.
Custom designed with a focus on relaxed luxury, the home welcomes you through a striking breeze block entry, where elegant curved forms, soaring 4m ceilings and carefully curated finishes create a calming sense of space and light. Timber flooring and expansive glazing amplify the connection between indoors and out, enhancing the home’s relaxed beachside atmosphere.
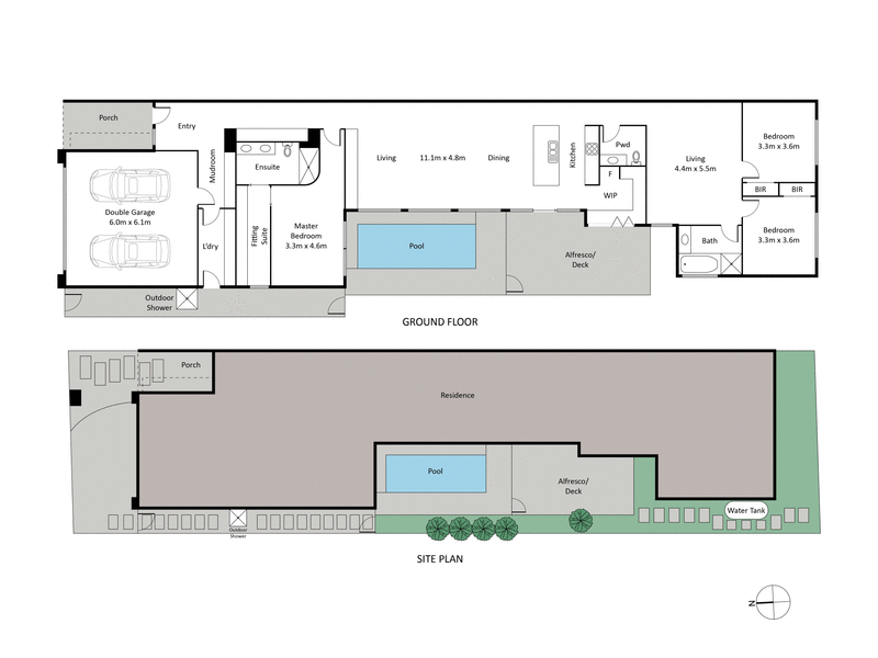
At the heart of the home, the voluminous open plan living, dining and kitchen domain is designed for effortless entertaining. The state-of-the-art kitchen is beautifully appointed with Bosch appliances, breakfast seating and a generous walk-in pantry with servery window, allowing the space to function as both a practical family hub and entertainer’s centrepiece.
Sliding glass doors extend the living area onto an expansive alfresco deck, creating seamless indoor-outdoor integration. Fully landscaped surrounds evoke a Palm Springs aesthetic, where the showstopping concrete swimming pool forms the focal point of the outdoor setting, complete with heat pump for year-round enjoyment.
Accommodation is thoughtfully zoned, with the master suite positioned as a private retreat overlooking the pool. Featuring a deep walk-in robe and a stunning ensuite with double vanity and feature tiling, the space captures cooling coastal breezes through louvred windows. Two additional bedrooms are serviced by a central family bathroom with built-in bath and an oversized powder room.
Further highlights include a dedicated workspace, practical mudroom, reverse-cycle heating and cooling, double glazed windows and doors, travertine bathroom tiling, and a double garage with epoxy flooring.
Located just metres from the local recreation reserve and an easy stroll to Ocean Grove’s vibrant café and shopping precinct (600m) and renowned surf beach (750m), this exceptional residence offers a rare blend of luxury, lifestyle and lock-and-leave convenience.
















