Tri Level Sanctuary with Roof Top Garden, 2 Lockup Garages Walking Distance To Sandringham Village
17/170 Beach Road, Sandringham
This Rothelowman-designed, 3-bedroom townhouse stands as a testament to architectural excellence, elevating the living experience just steps away from the water’s edge, accessible via Masefield Avenue. Nestled within Sandringham's renowned Pavilion Terraces complex, this residence offers a lifestyle of unparalleled quality. Short stroll to Sandringham shops, transport, cafes & restaurants.
Bask in the northern sunlight on the rooftop deck, while gazing upon the deep blue sea and skyline views.
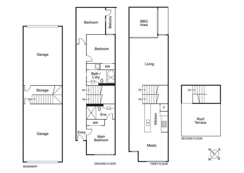
Positioned on the ground floor, three bedrooms provide ample accommodation, all adjourned with a high-end interior fit out, the master bedroom features an ensuite bathroom and built-in robes, ensuring comfort and convenience.
Upstairs the living and dining zones seamlessly blend with the outdoors through stacking slider doors – perfect for alfresco entertaining. The Meile appointed kitchen (with island) boasts quartz stone and marble benches, adding a touch of sophistication.
Thoughtful design includes ample storage space, basement parking for two cars and zoned ducted heating and cooling. With the beach just moments away, indulge in water activities or enjoy leisurely walks along the foreshore path. Sandringham village shops, cafes, and train station are within easy reach, whilst schools and Royal Avenues parkland's, tennis centre, and playground are just moments away, completing this idyllic coastal lifestyle.











