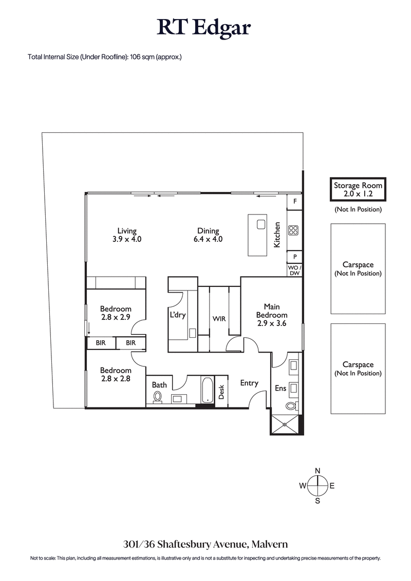
The Penthouse
301/36 Shaftesbury Avenue, Malvern
Situated at the front of the building securing breathtaking views to the north this beautiful 3 bedroom Penthouse apartment includes basement car parking for 2 cars and a large storage unit.
Boasting a magnificent open plan kitchen living dining room adjoining an extensive full width wrap around entertaining terrace with stunning views and extendable awning for shade on those hot afternoons. The chefs kitchen has a full integrated refrigerator, Bosch appliances and ample storage space, the living room boasts built in joinery and massive picture windows that showcase the views. The master bedroom has a full walk in robe and generous ensuite bathroom. There’s a small study located in the entrance, plus two further bedrooms and a central bathroom with bath, the residence also includes multiple concealed heating and cooling units, lift access, stunning Oak floors a security entrance and sits with an abundance of shops cafes and restaurants within an easy stroll as well as tram train and supermarkets.











