Victorian Elegance In A Vibrant Locale
82 Peel Street, Windsor
Charming, renovated and rich in original character, this magnificent single-fronted Victorian terrace exudes timeless appeal with its soaring ceilings, ornate cornices, and elegant north-facing façade. Privately positioned behind a classic terrace frontage, the home enjoys a sun-drenched rear courtyard and an enviable location in one of Windsor’s most sought-after pockets. Seamlessly blending period elegance with contemporary comfort, the residence offers unmatched convenience just moments from Chapel Street’s vibrant cafés, bars, restaurants, and boutiques, with Greville Street, Prahran Market, Prahran Square, trams, and Windsor Station all within easy reach. Albert Park Lake and Fitzroy Street are also just minutes away, completing an irresistible lifestyle offering.
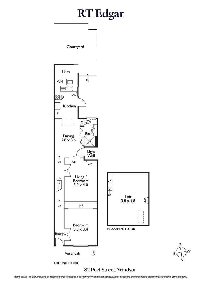
A beautiful arched hallway with original timber floorboards introduces the home, leading to a spacious main bedroom with built-in robes and a north-facing window. The versatile formal living room provides the option for a generous second bedroom, flowing through to a light-filled dining area enhanced by a central lightwell. The updated kitchen, equipped with quality finishes and appliances including an integrated dishwasher, marble flooring, and ample storage, complements a central bathroom and separate laundry. A clever loft conversion, accessed via fold-out stairs, offers a tranquil study or retreat capturing leafy vistas and glimpses of the city skyline. At the rear, a private courtyard bathed in sunlight provides the perfect setting for relaxed alfresco dining or intimate entertaining. Additional features include split-system heating and cooling, plantation shutters, and eligibility for two on-street parking permits via Stonnington Council.















