Contemporary Comfort in Coburg
187c Bell Street, Coburg
Expression of Interest
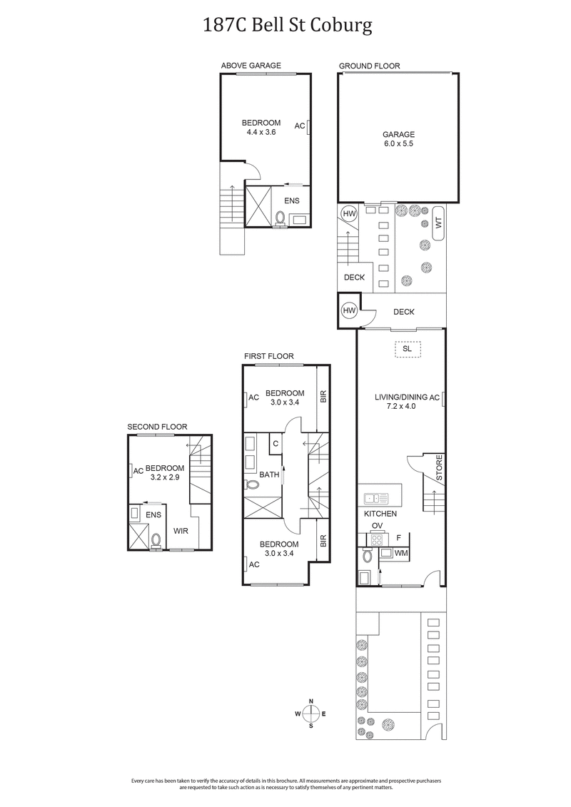
Experience contemporary comfort and effortless style in this brand-new four-bedroom townhouse, thoughtfully crafted for modern living. From the moment you step inside, natural light fills the spacious open-plan living and dining area, where clean lines and warm finishes create an inviting atmosphere. The designer kitchen features sleek stone benchtops, minimalist timber cabinetry, and a striking central skylight, with a generous island bench providing extra storage and workspace — ideal for those who love to cook and entertain.
The ground floor also includes a private bedroom with a built-in robe and ensuite, perfect for guests or multi-generational living. Upstairs, two additional bedrooms with built-in robes share a beautifully appointed main bathroom with dual vanities, offering both practicality and luxury. Timber floors throughout the home enhance its contemporary aesthetic, while fresh white interiors evoke a sense of calm and openness.
Step outside to a sun-soaked decked courtyard — the perfect setting for alfresco dining or relaxing outdoors. Beyond the courtyard, you’ll find a secure garage and an additional bedroom with its own ensuite, providing flexibility for a home office, guest suite, or private retreat.
Perfectly positioned within the sought-after Coburg High School and Coburg North Primary School zones, this home combines family-friendly convenience with urban accessibility. Walk to Coburg Station or the Sydney Road tram for an easy city commute, and enjoy nearby lifestyle amenities including Pentridge Shopping Centre and the scenic Coburg Lake Reserve.



















