Coast-Meets-Country Luxury
1195 Swan Bay Road, Swan Bay
A true lifestyle statement from start to finish, this stunning property with in-ground pool, tennis court, and two separate residences offers the ultimate in coast-meets-country living, just 700m from the Swan Bay jetty and boat ramp.
In a private and peaceful setting of approximately 30 hectares, ‘Bayview Farm’ has been enhanced by a two-year, no-expense spared renovation, accentuated by captivating waterscapes from multiple vantage points.
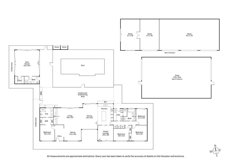
Soaring cathedral ceilings, polished concrete floors, exposed brickwork, and timber panelling flow throughout the main four-bedroom residence. Rich in character, its expansive open plan family domain is warmed by a wood fire, accompanied by a stone kitchen with Bosch 900mm wall oven, induction cooktop, integrated dishwasher, and Falmec cylindrical rangehood.
Sliding glass doors and a servery window expand the space to an entertainer’s paradise with north-facing alfresco patio and barbeque kitchen surrounding a sparkling self-cleaning heated swimming pool, all immersed in the sweeping bay views.
Rest and recreation continue with a deluxe pool house with private bathroom, and a separate sitting room that draws your gaze to the water, while accommodation is diverged into two separate wings including a main retreat with walk-through robe and twin vanity ensuite.
Comprehensively appointed to align with a home of this calibre, there’s also a fully tiled family bathroom with back-to-wall freestanding tub, reverse cycle air-conditioning to all three living zones, and a stone-topped, storage-laden laundry.
The fully self-contained two-bedroom cabin is ideal for guests or multi-generational families, while the lifestyle assets continue with a floodlit tennis court, in-ground trampoline, basketball zone, and expansive productive gardens.
There’s also extensive infrastructure in place to support farming pursuits with a near-new high-clearance machinery shed, separate four-bay garaging with adjoining office or living space, a large dam with resident bird life, and two 31,700L capacity water tanks.
Positioned for peace and privacy, yet with a 10-minute drive of the Point Lonsdale, Drysdale, and Portarlington townships, this outstanding property sets a high standard for family function and lifestyle appeal.




































