Spacious Family Home with Expansive Views
7 Mandlay Close, Leopold
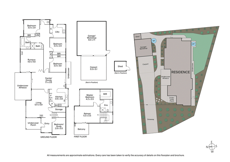
An exhibition of exceptional space and functionality awaits in this four-bedroom plus study residence, delivering a tranquil retreat for the family buyer, backdropped by elevated views over Corio Bay and the Geelong city skyline.
Peaceful and private at the top of a quiet court, the sprawling two-storey residence has been carefully designed to offer space aplenty to work, entertain, and unwind.
Freshly painted, and enhanced by new flooring and lighting, interiors are introduced by a formal living and dining space where a wood burning fire creates a cosy ambience, before flowing through to a central open-plan family zone that’s ideal for bringing the family together.
An expansive kitchen is bathed in natural light courtesy of a feature garden window, while expansive bench and storage space, plus all-new Westinghouse appliances, ensure the space is well equipped to cater to the masses.
Continuing the functional family layout, a third living area sits alongside three lower-level bedrooms, offering an ideal teen retreat or children’s playroom, while nearby a separate bathroom, shower room, and WC handle the morning rush with ease.
Parents, too, are afforded their own space with the main bedroom suite commanding the entire upper level, impressively appointed with a walk-in robe, ensuite, and its own private sitting room leading to a view-swept open-air deck.
Separately zoned, a dedicated home office is ideal for students or the working from home professional, with flexibility to function as a fifth bedroom if required.
Set amid lush, productive gardens with a covered alfresco courtyard for balmy summer barbecues, plus plenty of lawn area for children to play, this well-presented property features gas heating, reverse cycle a/c to both levels, ducted vacuuming, 11,000L of rainwater storage, alarm system, and expansive off-street parking including a large garage/workshop and a double carport, securely set behind high automatic gates. Adding to the appeal is the home’s proximity to kindergartens and Leopold Primary School while easy access to public transport and the Gateway Plaza is another plus to this family-focused location.





















