A Property Of Distinction - Elite Coastal Position
5 The Avenue, Ocean Grove
Substantial Price Reduction Represents Outstanding Value in Blue Chip Ocean Grove!
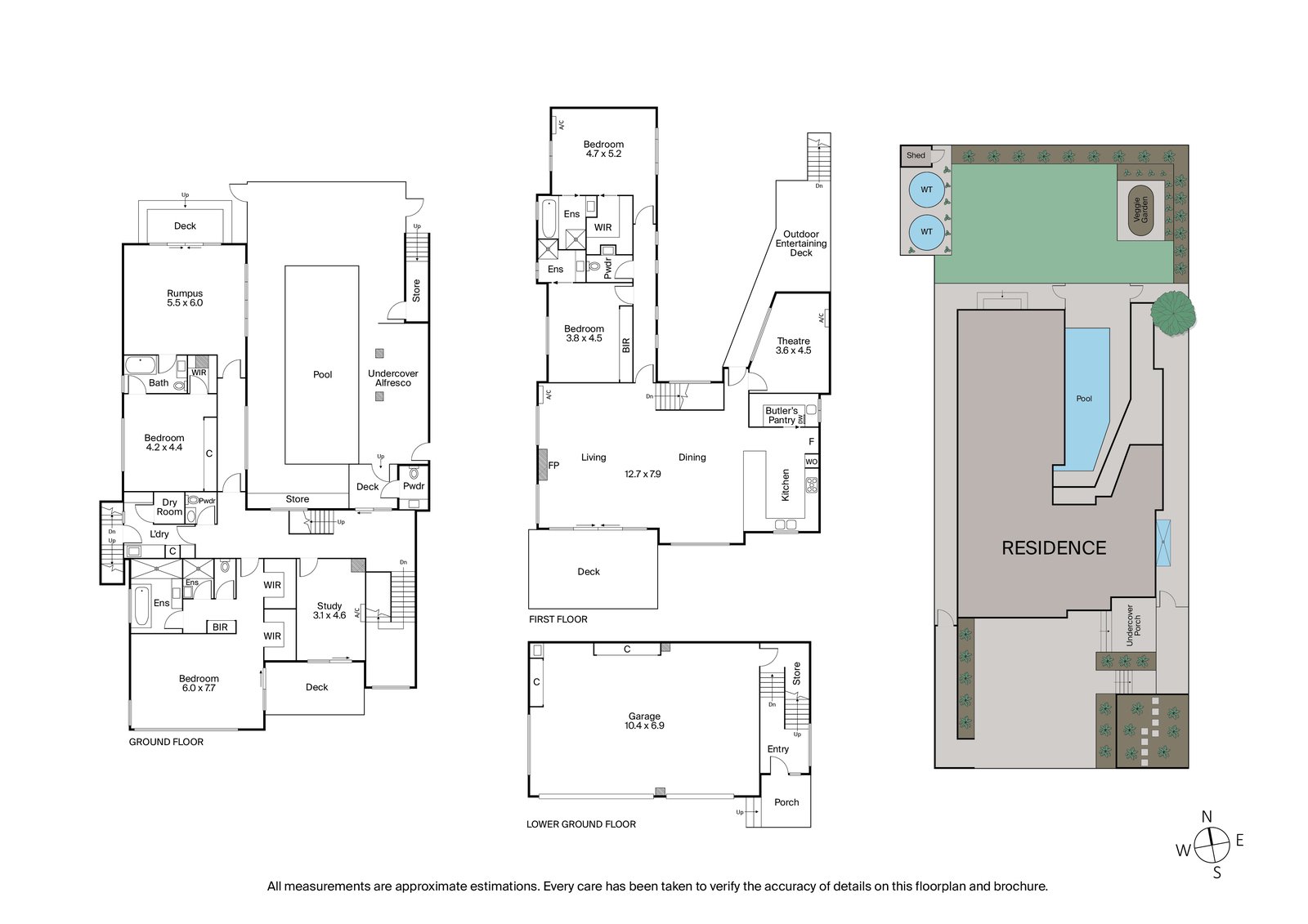
Exquisite and unmatchable Bass Strait, Barwon Heads Bluff and Barwon River views offer a breathtaking backdrop to this quality built Le Maistre home, positioned inarguably in one of Ocean Groves most distinguished locations. Elevated construction secures your priceless uninterrupted outlooks across to the south, duly designed to cleverly harness natural warmth from the sunny north. Clean, contemporary style embraces minimalist elements in a luxurious interior setting, spread across three highly functional levels with an emphasis on resort-style family living and those all encompassing views.
Mindfully situated to celebrate your unrivalled panoramic outlooks, the palatial open plan living, kitchen and dining area occupies the upper level, offering families and friends a central place to entertain and relax. High end cooking appliances, butlers pantry with filtered water tap and an abundance of sleek storage options occupy the seamlessly designed kitchen, with immediate connection to multiple outdoor decks for extended visual pleasure. Natural ambience is supported by hardwood timber floors and a gas log fireplace to the living zone, with a feature picture window overseeing your sparkling solar heated, in-ground swimming pool to the rear. An elevated alfresco deck oriented directly north with a gas plumbed bbq, heated outdoor shower, undercover lounging space and beautifully landscaped gardens, complete this spectacular lifestyle setting.
Breathtaking aquamarine outlooks feature within the oversized primary suite through frameless corner glazing, lavishly hosting dual ensuite bathrooms, walk-in robes and a private balcony. The additional three bedrooms all benefit from individual ensuites, abundant storage/robe options and lush carpets underfoot. Respite can be found within the fully equipped theatre suite, the ideal room to unwind and stretch out after leisurely days spent at nearby beaches or lazing around the pool; with a separate home office equipped to take care of business.
Further features include double glazing, zoned ducted heating and cooling, four reverse cycle air conditioning units, video intercom, security system, automated sun blinds, 5kw solar panels, plantation shutters, three car garage with workshop, 20,000L rainwater capacity, vegetable beds, established citrus trees, external storage room for pool equipment, secure side access and sealed driveway with further off street parking.
This prestigious location has you within walking distance to our patrolled surf beach, Barwon River, village centre, Ocean Grove Golf Club and established walking tracks linking you to Barwon Heads. Immaculately presented to the market, this truly is a once in a lifetime opportunity to secure a luxury property, redefining opulence and coastal living.
































