Absolutely Spectacular Uninterrupted Views
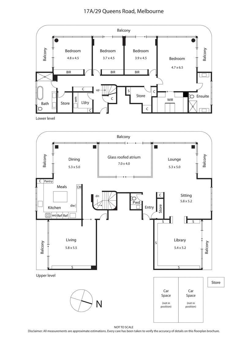
17A/29 Queens Road, Melbourne
This is one of the best and most bespoke double story penthouse apartments of some 420sqm of livable together with a further 60sqm of terrace, boasting spectacular 180-degree uninterrupted City views across Albert Park Lake all way to St Kilda Marina and the Bay with the building set well back from Queens Road this unique and one of kind apartment is offered for only the second time in the past 35 years.
Upstairs features; fabulous Large kitchen with built in wine fridge complete with European appliances, vast dining space with incredible views perfect for entertaining around the 10 seater dining table. A large glass roofed atrium perfect for year-round entertaining separates the dining from the living and sitting areas as well as a stunning space for a grand piano. A magnificent timber Library modelled on Napoleon’s personal library plus another separate living area or home room. Downstairs accommodation includes 4 large bedrooms, separate main bathroom, Master with walk in robe and en-suite, with every bedroom enjoying the impressive views.
Other features include large wrap around balconies to both levels, parquetry floors, floor to ceiling windows throughout the entire Penthouse. Two side by side basement car spaces and a generous store room.
Communal facilities, gym lounge and large indoor pool adjoining large sun terrace lift access and security entrance.
Inspect by appointment

























