3/6 Mackie Court, KewVIC3101
Art Deco Delight in the Studley Park Precinct
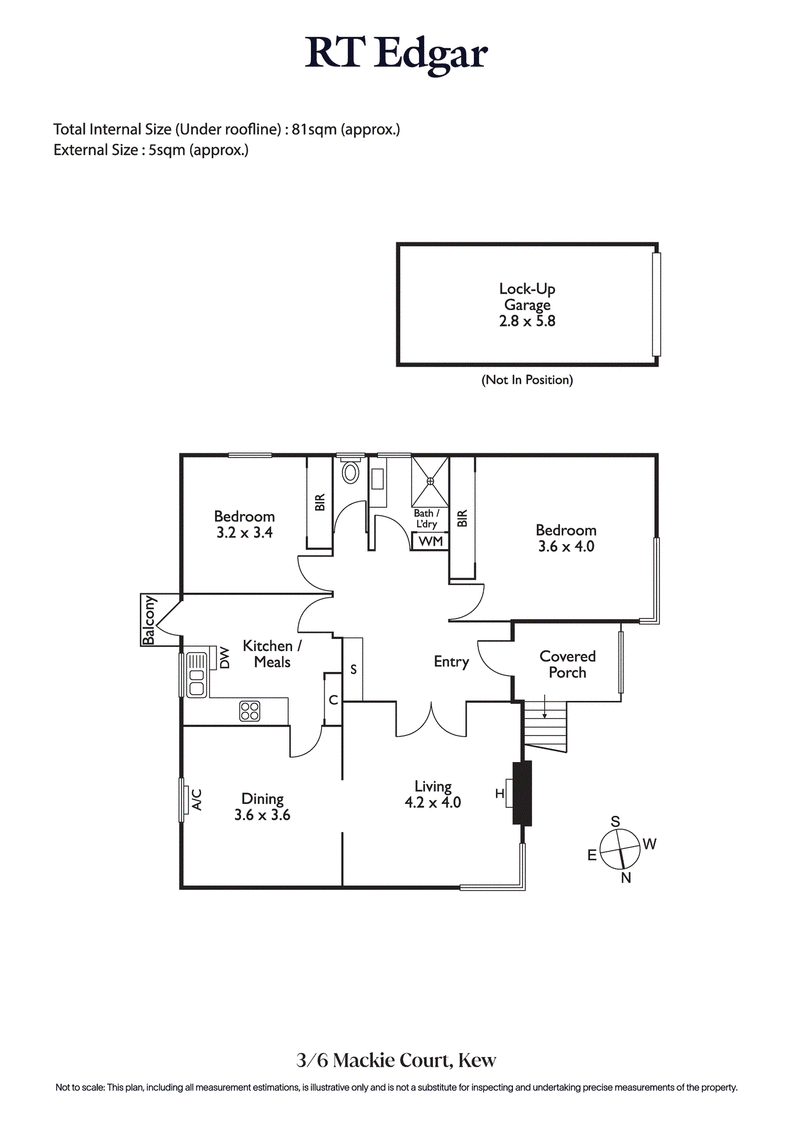
Nestled discreetly within a tree-lined court in one of Melbourne’s most prestigious neighbourhoods, you will fall in love with the quiet ambience and period beauty of this two bedroom apartment.
Within a charming Art Deco quartet with a one-up-one-down design, head up the private stairwell to the 1st floor entry where an eye-catching combination of soaring ceilings and richly polished boards harmonise with the quiet double brick construction.
You’ll be attracted to the generous dimensions of the lounge with gas heater, flowing into the separate dining room with split system air-conditioner. Alongside, your friends can relax in the meals area while you cook with confidence in the updated kitchen including Smeg stainless steel appliances.
Featuring a stylishly renovated bathroom with Euro laundry, a convenient study nook, built-in robes and lock-up single garage, simply move straight in and enjoy the blue-ribbon lifestyle. Walk with ease in one direction to the banks of the Yarra River and Kew Junction’s enticing array of premium retailers, fresh food providores and the supermarket. Near elite schools including Xavier College, MLC, Trinity and Ruyton, catch the tram into vibrant Richmond and the city.

Agents
LOCATION
Stonnington Office
Contact to discuss
3/6 Mackie Court
Start the conversation today—for guidance that leads to the best outcome

















