16 Brett Street, BrunswickVIC3056
Impressive Renovation Potential (STCA), Enviable Lifestyle
Tucked away behind a garden in a quiet cul-de-sac, this semi-detached Edwardian terrace on a block 157 sqm (approx.) offers an impressive proposition for renovation (subject to council approval). Just a short stroll from the iconic cosmopolitan strips along Lygon Street and Sydney Road, it's situated in a great position for an enviable lifestyle.
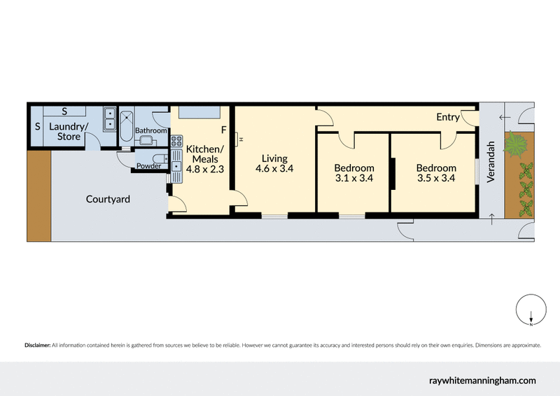
Featuring high ceilings, a central living space, two bedrooms, a kitchen/meals area which flows to the rear bathroom (shower over bath) and a verandah. The home opens out to a serene entertainer's courtyard, with a laundry/store room nearby and outdoor powder room.
A great location within close proximity to trams, cafes, restaurants, supermarkets, bars, bakeries, trails, Brunswick Baths, Barkly Square and so much more. Zoned to Brunswick East Primary School* and Brunswick Secondary College*.
*Refer to | https://www.findmyschool.vic.gov.au/
To view the due diligence checklist for home and residential property buyers copy link.
https://www.consumer.vic.gov.au/duediligencechecklist.
Photo ID Required at all Inspections.










